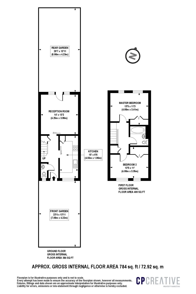
Floorplans For Tyers Terrace

Floorplans For Tyers Terrace